Detached house for Sale - Goodwood Grand - D10 - Bukit Timah - Balmoral Road - 7 160 000 SGD - 94233

7 160 000 SGD

Negotiable
KATE SOH XUAN WEN
KATE SOH XUAN WEN
Property Agent

Verified number: +6593212106

https://agent.sg/R018977H
Write message to

+65

Share this listing
Description

*Goodwood Grand* TOP Obtained

Project Name: Goodwood Grand
Developer: Feature (Balmoral) Pte Ltd (An associate of the Tong Eng Group)

Address: 16 Balmoral Road
District: 10
Site Area: 57, 005 sqft
Tenure: Freehold

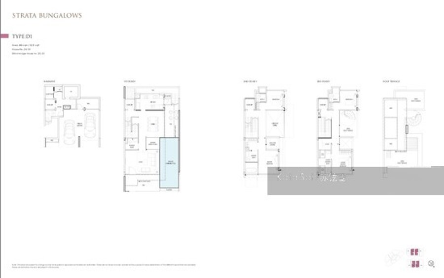
No Of Units: 73 (12-Storey Tower of 65 apartments & 8 strata bungalows)
Unit Types: 2 - Bedroom + study + PES: 893 sqft
2 - Bedroom + study: 775 sqft
2 - Bedroom + study: 893 Sqft
3 - Bedroom + PES: 1109 sqft
3 - Bedroom (Utility) + PES: 1302 sqft
3 - Bedroom : 1044 sqft
3 - Bedroom (Utility) : 1227 Sqft
3 - Bedroom Penthouse: 1679 sqft
3 - Bedroom Penthouse + Roof terrace: 2142 sqft
4 - Bedroom Penthouse: 2487 sqft
4 - Bedroom Penthouse + Roof terrace: 3110 sqft
Strata Bungalow 4BR + Study + Pool + PES: 5167 - 5479 sqft
No of Carpark Lots: 70 car park lots (inclusive of 2 handicap and 3 visitor lots) & 16 carpark lots (2 carpark lots for each Strata Bungalow)

Kate Soh *****
Best Prices Assured
Developers Appointed Sales Team
Huttons Asia Pte Ltd

★ GOODWOOD GRAND ★ GOODWOOD GRAND ★ GOODWOOD GRAND ★ GOODWOOD GRAND ★ GOODWOOD GRAND ★ GOODWOOD GRAND ★ GOODWOOD GRAND ★ GOODWOOD ★ GOODWOOD GRAND ★ GOODWOOD GRAND ★

***** Residences/Alps Residences/Coco Palms/D’nest/Commonwealth Towers/Sturdee Residences/Forte Suites/Kallang Riverside/***** Park/Sims Urban Oasis/Tre Residences/Singa Hills/Stars of Kovan/Trilive/The Venue Residences/Forestwoods/Lake Grande/Parc Riviera/Gramercy Park/Robin Residences/Queens Peak/The Rise @ Oxley/Sophia Hills/Goodwood Grand/Onze @ Tanjong Pagar/Spottiswoode Suites/26 Newton/Centrium Square/Kingsford Waterbay/Thomson Impressions/Principal Garden/Mon Jervois/Pollen & Bleu/Highline Residences/One Surin/12 on Shan/Leedon Residence/Sol Acres EC/The Vales EC/Parc Life EC/CityGate Shop/The Santorini/The Clement Canopy/The Crest/The Glades/Grandeur Park Residences/North Park Residences/Seaside Residences/

*Launching Soon*New Launches*
*Hundred Palms EC*Le Quest*Martin Modern*

Estate details

Sale

Goodwood Grand

Balmoral Road16

7 160 000 SGD

Negotiable

5

Detached house

5231 sqft

94233

Freehold

Photos of this Landed
Location of this property
More estate type list in D10 - Bukit Timah