Bungalow house for Sale - Victoria Park Villas - D10 - Bukit Timah - Victoria Park Villas Victoria Park Grove Singapore - 8 630 000 SGD - 1003115

8 630 000 SGD

Normal
LIM WAI PANG
LIM WAI PANG
Property Agent

Verified number: +6596733168

https://agent.sg/R044681I
Write message to

+65

Share this listing
Description

Call Dev Sales Henry ***** for viewing Appointment.

ONSITE DAILY! View ACTUAL HOUSES!

Home is where VICTORIA PARK VILLAS IS!

ATTRACTIVE PRICES! Own a landed home nestled at prime district10 within Victoria Park GCB neighbourhood at a good entry price!

Rare large plot of land - A collection of 109 exclusive homes
~ 106 semi-Ds
~ 3 bungalows

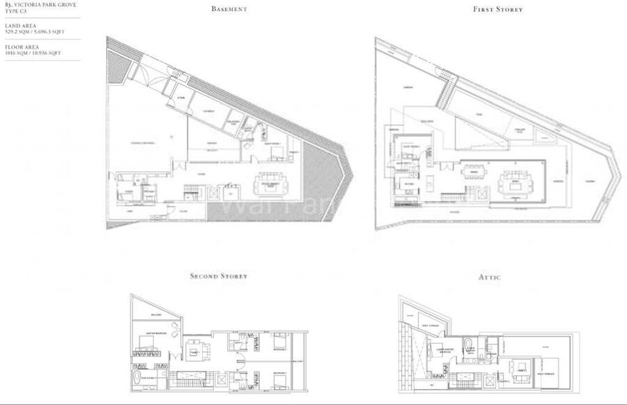
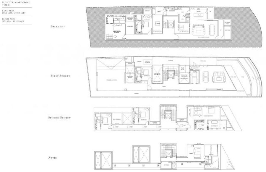
Layout:
~ Basement: ensuite guest bedroom, helper room ensuite, 2
covered carpark lots, family area
~ 1st level: Living and dining surrounded by garden, dry and
wet kitchen
~ 2nd level: master suite, 2 ensuites common bedrooms
~ Attic: Junior master suite with roof terrace

* Brand new, quality fittings landed homes
* 2 Fully covered car park lots
* Home lift to all levels
* Smart home system with security
* Hyflux Alkaine water system
* Fully equipped kitchen
* wider than normal 2-way roads for easy access, 7.4m
* within 1 km to the Prestigious Nanyang Primary school
* Multiple road access via Holland Road, Bukit Timah Road,
Coronation Road & Farrer road
* Close proximity to 2 MRT Stations - Circle Line Farrer Road
MRT, Downtown Line Tan Kah Kee Station
* elevated garden patio adjacent to living room
* Well thought architecture that provides ample natural light and
cross ventilation
* Possibility of combining units for Multi-generation families.
Combine adjacent plots
* The landed development by Capitaland, designed by not just
one but three independent architects lead by Master architect
Mok Wei Wei from the renowned firm W Architects.

Contact Henry Lim ***** for more layouts! Make an Appointment Now and have a Feel of Home!

#Victoriaparkvillas
#brandnewhouses
#newprimelandeddevelopment
#district10landedhomes
#landedhomesbyCapitaland
#masterarchitectMokWeiWei
#experiencetheBeautyofLife
#1kmtoNanyangprimaryschool
#attractiveentryprice
#landedhomesingoodclassbungalowzone

Estate details

Sale

Victoria Park Villas

Victoria Park Villas Victoria Park Grove, Singapore0

8 630 000 SGD

5

6

5 sqft

1003115

Photos of this Landed
Location of this property
More estate type list in D10 - Bukit Timah