Good class bungalow for Rent - Belmont Road - D10 - Bukit Timah - Belmont Road Singapore - 26 000 SGD - 1076706

26 000 SGD

Normal
KARUPPIAH TANAPALAN
KARUPPIAH TANAPALAN
Property Agent

Verified number: +6598716989

https://agent.sg/R020910H
Write message to

+65

Share this listing
Description

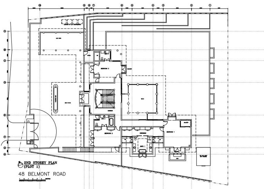
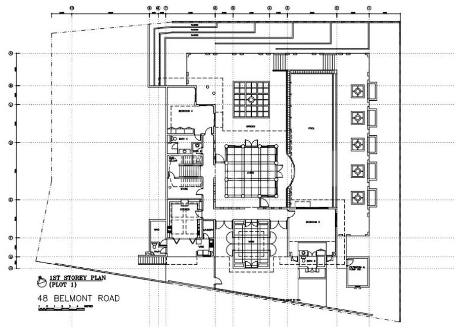
2 Storey Good Class Bungalow on Belmont Road
- District 10
- Complete Privacy
- 5 Bedrooms + Maid's room + Utility room
- All bedrooms with attached bathrooms
- Lavishly fitted with newly renovated bathrooms
- Spacious living and dining area with double volume ceilings
- Private swimming pool with lush courtyard

Estate details

Rent

Belmont Road

Belmont Road Singapore0

26 000 SGD

5

5

7 sqft

1076706

Facilities
Key features:
  • Renovated
  • Fibre Ready
  • Greenery View
  • Maid's Room
  • Utility Room
  • Patio / PES
Photos of this Landed
Location of this property
More estate type list in D10 - Bukit Timah