Corner terrace for Sale - Mandai Garden - D26 - Upper Thomson - Meng Suan Road - 3 280 000 SGD - 80794

3 280 000 SGD

Negotiable
LIONEL CHEW PANG YANG
LIONEL CHEW PANG YANG
Property Agent

Verified number: +6588695589

https://agent.sg/R057747F
Write message to PY

+65

Share this listing
Description

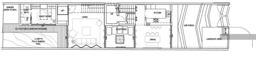
BRAND NEW 3.5 sty Inter Terraces and Corner Terraces

★Terrace Houses
★ New Constructed
★5 Bedroom
★ 2 Family Area
★Individual swimming pool 7m Length X 1.2m depth
★ Roof Terrace
★Main Door facing South East
★ Private Lift
★Near to Future Springleaf MRT Station (Thomson Line) which only few minute away

Contact Pang Yang @ ***** for Exclusive viewing!

Estate details

Sale

Mandai Garden

Meng Suan Road1

3 280 000 SGD

Negotiable

5

0

Corner terrace

3495 sqft

1690

80794

999-year Leasehold

Photos of this Landed
Location of this property
More estate type list in D26 - Upper Thomson