Terraced house for Sale - Nim Collection - D28 - Yio Chu Kang - Nim Collection Nim Terrace Singapore - 2 800 000 SGD - 964907

2 800 000 SGD

Normal
CHENG YEOU WEE
CHENG YEOU WEE
Property Agent

Verified number: +6592365109

https://agent.sg/R008171C
Write message to

+65

Share this listing
Description

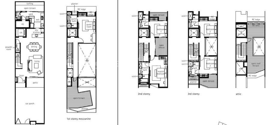
d20 d28 ang mo kio yio chu kang new landed terrace house dev sales corner terrace 5 bedroom all en suites with helpers room land size 1915sf built up appr 4300sf fr $3.1xmil

Nim Collection new landed terrace house

private lift access to all floors

Expected TOP in Year 2019

A magnificent residence, heralded by majestic landscape, helmed surrounded with all amenities

Brand New Landscaping with Park Connector, Heritage and new café dining experience

A Unique masterpiece landed terrace houses for connoisseurs who share the same appreciation of this truly rare privilege. Come with Quality Fittings & Finishes

Rare efficient design and spacious layout

5 Bedroom all en suites + Utility/Maidsoom +Family and entertainment area

Private Lift Access to Every Floor
Private Car Park Lots
Wet & Dry Kitchen

WELL PROMINENT & CONVENIENT LOCATED SURROUNDING ALL AMENITIES

3 min Jalan Kayu food street & Greenwich mall
5 min yio chu kang & ang mo kio mrt
6 min seletar mall & seletar aerospace
10min to central business district
near to da qiao primary, fernvale primary,rosyth school, Anderson jc, nanyang poly etc

Viewing Available by priority appointment
Pls Call

Nigel Cheng
HTNS Dev Snr Mkt Director
Mobile: *****


ang mo kio ang mo kio ang mo kio ang mo kio
ang mo kio ang mo kio ang mo kio ang mo kio
ang mo kio ang mo kio ang mo kio ang mo kio


nim collection nim collection nim collection
nim collection nim collection nim collection
nim collection nim collection nim collection


landed terrace house landed terrace house
landed terrace house landed terrace house
landed terrace house landed terrace house

Estate details

Sale

Nim Collection

Nim Collection Nim Terrace, Singapore0

2 800 000 SGD

6

6

1 sqft

964907

Facilities
Key features:
  • Balcony
  • City View
  • Fibre Ready
  • Greenery View
  • Maid's Room
  • Utility Room
  • High Ceiling
  • Study Room
Location of this property
More estate type list in D28 - Yio Chu Kang