Corner terrace for Sale - Nim Collection - D28 - Yio Chu Kang - Nim Collection Nim Rise Singapore - 3 198 000 SGD - 952136

3 198 000 SGD

Normal
WEE CHOW KEN
WEE CHOW KEN
Property Agent

Verified number: +6597111924

https://agent.sg/R057375F
Write message to

+65

Share this listing
Description

Nim Collection is Launching on the 19th to 28th January 2018!
Super Early Bird Discounts Only Available During Launch Preview Period.

To RSVP for Launch Day or Enquire, please contact,
Ken Wee (Nim Collection Developer Sales Team)
*****
Call / Whatsapp / SMS

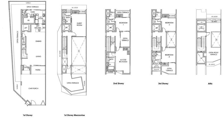
* 47 Exclusive Homes (37 Terrace, 8 Corner, 2 Semi-D)
* Designed by Renowned Mok Wei Wei from W Architects
* All 5 Spacious Bedrooms Ensuite with Home Lift
* Approx Land Sizes: 1615 sqft to 4100 sqft
* Approx Built-Up: 4198 sqft to 4790 sqft
* Abundance of Natural Lighting within Units
* Good Cross Ventilation
* Modern Contemporary Design
* Beautiful Facade
* Perfect Layouts and NS Facing Units
* Smart Home System
* Park Two Cars Easily
* Spacious Wet and Dry Kitchen
* Branded Appliances

More info at *****

KEN Wee
Marketing Director
CBRE
(+65) *****
kenweeproperty.com

Estate details

Sale

Nim Collection

Nim Collection Nim Rise, Singapore0

3 198 000 SGD

5

6

2 sqft

952136

Facilities
Key features:
  • Balcony
  • Corner Unit
  • Roof Terrace
  • Bomb Shelter
  • Fibre Ready
  • Greenery View
  • High Ceiling
Photos of this Landed
Location of this property
More estate type list in D28 - Yio Chu Kang