Semi detached house for Sale - Nim Collection - D28 - Yio Chu Kang - Nim Collection Nim Rise Singapore - 2 800 000 SGD - 947565

2 800 000 SGD

Normal
LIM BENG LEONG
Property Agent

Verified number: +6594561447

https://agent.sg/R032058J
Write message to

+65

Share this listing
Description

Nim Collection is having a SPECIAL PROMOTIONAL DISCOUNTED PRICE OFF 4%.

Nim Collection By Bukit Sembawang Estates

Embraced by nature, tranquility, and a kampong spirit that exists few places else, the Nim Collection heralds an exciting new chapter in the rich story of Seletar Hills. A residential enclave that continues a legacy of quality homes, shaped for a new future, inspired by the vitality of the area’s burgeoning growth. As the pioneer development in an ambitious masterplan, the Nim Collection offers more than a home. It’s a unique opportunity to mould the next chapter into a story that will shape generations to come.

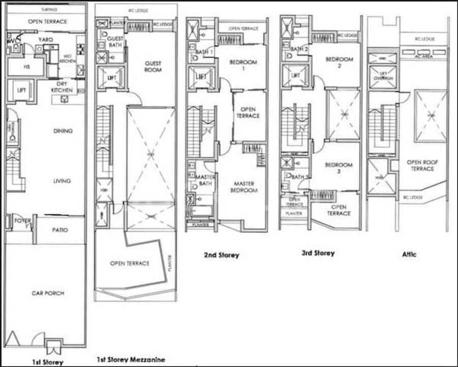
The Nim Collection offers an exciting new mode of Seletar living in a cluster of 47 landed terrace houses, representing Phase 1 of a two-phase, 98-unit development. A peaceful retreat from the urban jungle. A cosy life of modern comfort close to nature, surrounded by the area’s enduring charms.

Image result for nim collection

Architecture + Interior

BOLD NEW CONFIGURATIONS OF LIVING SPACE

Nim Collection is one of the first developments to explore the new landed housing guidelines introduced by the URA that allow for greater flexibility in design and configuration of interior space.

W Architects brings ingenuity to the pioneering design of the development’s partial four- and three-storey landed terrace houses. Through varying spatial heights and volumes, multiple views, connections to the outdoors on different levels, and the intelligent embrace of natural light and air, residents will enjoy a thoughtful balance of intimate and communal spaces. More warmth, more soul, more functional to the needs of multi-generations living under one roof.

From its well-appointed interiors and quality finishes to its distinctive angular geometry, punctuated by multi-level gardens, the development encapsulates everything you love about Seletar in a home designed for its time.

Estate details

Sale

Nim Collection

Nim Collection Nim Rise, Singapore0

2 800 000 SGD

6

6

1 sqft

947565

Facilities
Key features:
  • City View
  • Corner Unit
  • Renovated
  • Roof Terrace
  • Bomb Shelter
  • Fibre Ready
  • Greenery View
  • Maid's Room
  • Utility Room
  • High Ceiling
  • Study Room
  • Loft
Location of this property
More estate type list in D28 - Yio Chu Kang